Bilocale in vendita

Roma, Via Ugo Givoannozzi - Ponte Di Nona
€ 149.000
2 locali 2 locali
55 Mq 55 Mq
1 bagno 1 bagno

Bilocale in vendita

Roma, Via Ugo Givoannozzi - Ponte Di Nona

Descrizione annuncio

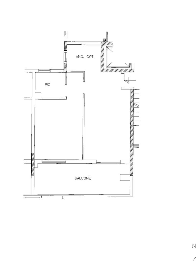
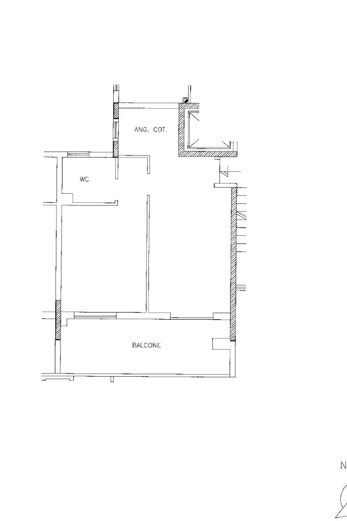
PONTE DI NONA - Proponiamo in vendita un bilocale nella zona centrale di Ponte di Nona, vicino a tutti i servizi, l'mmobile è in ottime condizioni, situato al primo piano di una palazzina costruzione Santarelli.

La soluzione è composta da: soggiorno con angolo cottura, ampia camera da letto e bagno finestrato con box doccia, terrazzo vivibile, esposto a SUD-EST. L'appartamento, inoltre, dispone di un comodo POSTO AUTO PILOTY.

Libero da subito!

Siamo a vostra disposizione per fissare un appuntamento con i nostri consulenti creditizi, il tutto completamente gratuito, così da proporvi il finanziamento più adatto per le vostre esigenze.

Per info e visite: 06.22440415 331-1887530 anche WhatsApp
dal Lunedì al Venerdì 9:00 - 13:00 / 15:30 - 20:00, Sabato 9:00 - 17:00 orario continuato.

COLLEGAMENTI
Automobile
Il Quartiere ha una uscita dedicata sull'A24, per immettersi sull'autostrada e le sue complanari.
In alternativa è possibile prendere la Collatina o la Prenestina. Inoltre per raggiungere il GRA è possibile immettersi all'uscita la Rustica, percorrendo Via di Salone e Via Noale.

Autobus
Il quartiere è collegato con il 314 (largo Preneste), lo 075 (stazione metro B Ponte Mammolo), 055 (stazione metro C Grotte Celoni), il 555 (stazione Ponte di nona fr2 e stazione metro c Borghesiana)

Treno
In Via Forlanini è presente la fermata del treno fr2 Roma Tivoli, che consente un collegamento in 30 minuti con la stazione Tiburtina e anche con stazione Termini con partenza ogni ora.

Ogni agenzia ha un proprio titolare ed e' autonoma - Le presenti informazioni non costituiscono elemento contrattuale.

Mostra tutto

Nelle vicinanze

Trasporto pubblico Trasporto pubblico
Ponte Di Nona
Ponte Di Nona
920 m
Ponte di Nona
Ponte di Nona
920 m
Colonnetti
Colonnetti
120 m
Caltagirone/Nottolini
Caltagirone/Nottolini
160 m
Ricariche auto elettriche Ricariche auto elettriche
Tecnopolo
3,0 Km
Scuole Scuole
Scuole
230 m
Istituto comprensivo statale "Giuseppe Impastato"
280 m
Scuola primaria statale
330 m
Prampolini
700 m
Istituto Tecnico Agrario "Emilio Sereni"
1,8 Km
Farmacia Farmacia
Farmacia Palermo
210 m
Parafarmacia Qualifarma
850 m
Farmacia
2,5 Km
Supermercati Supermercati
Panorama
830 m
Unico
2,6 Km
Negozi Negozi
Panificio
2,9 Km
Ristoranti Ristoranti
L'angolo del Gusto - ristorante e pizzeria
170 m
Gli Antenati
380 m
Mostra tutto

Caratteristiche

Rif.:
61178635
Piano:
1 di 4 con ascensore (Piano basso)
Posti auto:
1
Balconi:
1
Terrazzi:
1
Camere da letto:
1
Mostra tutto
Prezzo Prezzo
€ 149.000
Rata mutuo Rata mutuo
€ 708 / mese
Proponi il tuo prezzoProponi il tuo prezzo

Classe Energetica

G
G
G
G
G
G
G
G
G
EP globale non rinnovabile:
175.00 kW h/m² anno
EP globale rinnovabile:
175.00 kW h/m² anno
EP invernale del fabbricato:
EP estiva del fabbricato:
Anno di costruzione:
2005
Riscaldamento:
Autonomo
Tipo impianto:
A radiatori
Tipo alimentazione:
Metano

Ti interessa visionare l'immobile?

Fissa un appuntamento  Fissa un appuntamento

Richiedi informazioni

Clicca su Leggi per aprire l'informativa
* Questi campi sono obbligatori

Calcola il tuo mutuo

Semplice e senza impegno
Anticipo

( % )
Mutuo

( % )

pochi semplici passi

inserisci i tuoi dati
Questionario completato
Grazie per aver richiesto un appuntamento senza impegno con un nostro Consulente del Credito e Assicurativo.

Hai inserito correttamente tutti i dati necessari e a breve riceverai una e-mail con un link da convalidare per inviare i tuoi dati.
Affiliato
Ponte Di Nona Mediazioni Srl
Viale Francesco Caltagirone, 363 00132 Roma (RM)

Il nostro staff


  • Vanessa Latino
    Coordinatrice

  • Manuel Tagliacozzi
    Responsabile

  • Daniele Mori
    Affiliato
Viale Francesco Caltagirone, 363 00132 Roma (RM)
Zona: Ponte di Nona
Mostra su mappa
Orari: dal lunedì al venerdì dalle 9:00 alle 13:00 e dalle 15:30 alle 20:00 e il sabato dalla 9:00 alle 17:00 orario continuato
Affiliato
Ponte Di Nona Mediazioni Srl
Viale Francesco Caltagirone, 363 00132 Roma (RM)

2026 Tecnocasa Franchising S.p.A. - P. IVA 08365160152 - Via Monte Bianco 60/A 20089 Rozzano (MI). Ogni agenzia ha un proprio titolare ed è autonoma. Privacy policy | Policy utilizzo | Cookie policy