Bilocale in vendita

Roma, Via Luigi Gastinelli - Ponte Di Nona
€ 159.000
2 locali 2 locali
60 Mq 60 Mq
1 bagno 1 bagno

Bilocale in vendita

Roma, Via Luigi Gastinelli - Ponte Di Nona

Descrizione annuncio

PONTE DI NONA - Proponiamo in vendita un ampio bilocale, situato al primo piano, con terrazzo privato di circa 50 mq.

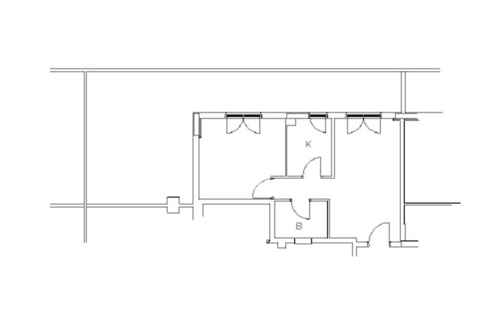
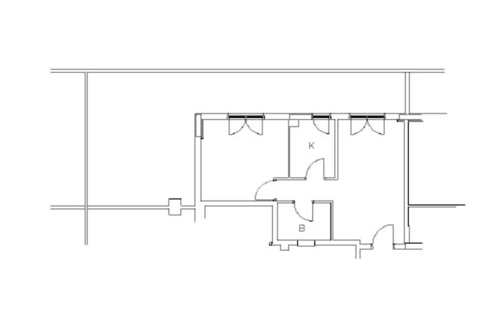
L'appartamento è così omposto: comodo salone luminoso, facilmente arredabile e ideale per creare una confortevole zona living e pranzo, cucina separata, bagno con vasca e camera da letto. Tutti gli ambienti hanno accesso diretto al grande terrazzo angolare di circa 50 mq, ideale per momenti di relax, pranzi all’aperto o per chi desidera uno spazio esterno vivibile tutto l’anno.

Grazie all'esposizione a SUD/EST, l’immobile gode di luce costante durante l’arco della giornata, offrendo ambienti particolarmente luminosi e piacevoli da vivere in ogni stagione.

L'appartamento, inoltre, dispone di un comodo POSTO AUTO PRIVATO, situato al piano piloty.

LIBERO DA SUBITO!

Altre peculiarità : infissi doppio vetro-legno a taglio termico e acustico, inferriate, porta blindata, ascensore condominiale, riscaldamento termo-autonomo, costo dell'acqua compresa nella quota condominiale mensile.

Siamo a vostra disposizione per fissare un appuntamento con i nostri consulenti creditizi, il tutto completamente gratuito, così da proporvi il finanziamento più adatto per le vostre esigenze.

Per info e visite: 06.22440415 331-1887530 anche WhatsApp
dal Lunedì al Venerdì 9:00 - 13:00 / 15:30 - 20:00, Sabato 9:00 - 17:00 orario continuato.

COLLEGAMENTI
Automobile
Il Quartiere ha una uscita dedicata sull'A24, per immettersi sull'autostrada e le sue complanari.
In alternativa è possibile prendere la Collatina o la Prenestina. Inoltre per raggiungere il GRA è possibile immettersi all'uscita la Rustica, percorrendo Via di Salone e Via Noale.

Autobus
Il quartiere è collegato con il 314 (largo Preneste), lo 075 (stazione metro B Ponte Mammolo), 055 (stazione metro C Grotte Celoni), il 555 (stazione Ponte di nona fr2 e stazione metro c Borghesiana)

Treno
In Via Forlanini è presente la fermata del treno fr2 Roma Tivoli, che consente un collegamento in 30 minuti con la stazione Tiburtina e anche con stazione Termini con partenza ogni ora.

Ogni agenzia ha un proprio titolare ed e' autonoma - Le presenti informazioni non costituiscono elemento contrattuale.

Mostra tutto

Nelle vicinanze

Trasporto pubblico Trasporto pubblico
Ponte Di Nona
Ponte Di Nona
1,9 Km
Ponte di Nona
Ponte di Nona
1,9 Km
Trucco
Trucco
150 m
Gastinelli
Gastinelli
200 m
Scuole Scuole
Scuola primaria statale
790 m
Istituto comprensivo statale "Giuseppe Impastato"
840 m
Scuole
860 m
Prampolini
890 m
Istituto Tecnico Agrario "Emilio Sereni"
1,0 Km
Farmacia Farmacia
Farmacia Palermo
1,1 Km
Parafarmacia Qualifarma
1,3 Km
Farmacia
1,5 Km
Farmacia Colle del Sole
2,4 Km
Supermercati Supermercati
Panorama
1,2 Km
Unico
1,6 Km
Supermercati
2,3 Km
Negozi Negozi
Panificio
2,3 Km
Ristoranti Ristoranti
Gli Antenati
780 m
L'angolo del Gusto - ristorante e pizzeria
1,0 Km
Mostra tutto

Caratteristiche

Rif.:
61183822
Piano:
1 di 5 con ascensore (Piano basso)
Posti auto:
1
Terrazzi:
1
Camere da letto:
1
Arredamento:
Assente
Mostra tutto
Prezzo Prezzo
€ 159.000
Rata mutuo Rata mutuo
€ 755 / mese
Spese annue Spese annue
€ 600
Proponi il tuo prezzoProponi il tuo prezzo

Classe Energetica

G
G
G
G
G
G
G
G
G
EP globale non rinnovabile:
175.00 kW h/m² anno
Anno di costruzione:
2000
Riscaldamento:
Autonomo
Tipo impianto:
A radiatori
Tipo alimentazione:
Metano

Ti interessa visionare l'immobile?

Fissa un appuntamento  Fissa un appuntamento

Richiedi informazioni

Clicca su Leggi per aprire l'informativa
* Questi campi sono obbligatori

Calcola il tuo mutuo

Semplice e senza impegno
Anticipo

( % )
Mutuo

( % )

pochi semplici passi

inserisci i tuoi dati
Questionario completato
Grazie per aver richiesto un appuntamento senza impegno con un nostro Consulente del Credito e Assicurativo.

Hai inserito correttamente tutti i dati necessari e a breve riceverai una e-mail con un link da convalidare per inviare i tuoi dati.
Affiliato
Ponte Di Nona Mediazioni Srl
Viale Francesco Caltagirone, 363 00132 Roma (RM)

Il nostro staff


  • Vanessa Latino
    Coordinatrice

  • Manuel Tagliacozzi
    Responsabile

  • Daniele Mori
    Affiliato
Viale Francesco Caltagirone, 363 00132 Roma (RM)
Zona: Ponte di Nona
Mostra su mappa
Orari: dal lunedì al venerdì dalle 9:00 alle 13:00 e dalle 15:30 alle 20:00 e il sabato dalla 9:00 alle 17:00 orario continuato
Affiliato
Ponte Di Nona Mediazioni Srl
Viale Francesco Caltagirone, 363 00132 Roma (RM)

2026 Tecnocasa Franchising S.p.A. - P. IVA 08365160152 - Via Monte Bianco 60/A 20089 Rozzano (MI). Ogni agenzia ha un proprio titolare ed è autonoma. Privacy policy | Policy utilizzo | Cookie policy